Situated in the popular Beechwood Park development, this home benefits from proximity to a range of local amenities, all within easy walking distance of Carlow town centre. The location is ideal for commuters, with excellent access to the M9 route.
DNG McCormack Properties is delighted to present 32 Beechwood Park to the market. A recently renovated 4-bedroom detached house that offers the perfect blend of modern comfort and a generous size living space. This home, once finished has the potential to be a desirable family home with features such as sliding pocket doors on the ground floor, an open fire place, light and spacious kitchen area with Velux windows, Staire attic access and wheelchair accessible ground floor to name but a few.
Upon entering, you are greeted by a bright and welcoming hallway that leads into a spacious living/dining area. This area is designed for both relaxation and entertaining, seamlessly opening onto a large, light-filled kitchen equipped with Velux windows, creating an airy and inviting atmosphere. The ground floor also includes a convenient utility room and a ground floor bedroom complete with an en-suite, making it ideal for guests or as an accessible living option.
The first floor comprises three well-appointed bedrooms, including a master bedroom with its own en-suite, ensuring comfort and privacy for all family members. A modern family bathroom serves the other two bedrooms.
Externally, the property boasts a large, bright rear garden that is not overlooked, providing a private outdoor space for relaxation and recreation. The rear garden also includes wheelchair access to the ground floor accommodation, ensuring accessibility for all. The front garden is designed for low maintenance and offers ample off-street parking.
Situated in the popular Beechwood Park development, this home benefits from proximity to a range of local amenities, all within easy walking distance of Carlow town centre. The location is ideal for commuters, with excellent access to the M9 route.
Don't miss the opportunity to make it your own. Contact DNG McCormack Properties today to arrange a viewing at 0599133800.
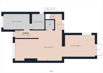
ACCOMMODATION
Hallway 3.67 x 1.05.
Living Area 7.34 x 4.63.
Kitchen Area 4.73 x 3.48.
Bedroom 4.15 x 2.39.
En-suite 1.99 x 2.54.
Utility 1.40 x 1.41.
Landing 0.93 x 3.24.
Bedroom 4.06 x 3.11.
En-suite 2.68 x 1.10.
Bedroom 3.24 x 4.18.
Bedroom 3.58 x 307.
Bathroom 2.70 x 1.95.
Features:
Newly extended kitchen area
New Windows
New Composite front and rear doors
Newly poured concrete floors on ground level
Newly fitted floors on first floor (insulated)
Newly fitted 2" insulation in walls
Newly configurated 1st floor to accomodate larger bedrooms and en-suite
Stove and hearth in the living area
New sanitary ware in all bathrooms
Newly raised boundary walls for more privacy
Fully fitted out for wheelchair accessability
Hand rail in rear garden for easier access
Newly fitted radiators
New condenser burner and tank
OFCH
Kitchen units/tiles and floor fittings can be discussed
Submit an enquiry and someone will be in contact shortly.
By setting a proxy bid, the system will automatically bid on your behalf to maintain your position as the highest bidder, up to your proxy bid amount. If you are outbid, you will be notified via email so you can opt to increase your bid if you so choose.
If two of more users place identical bids, the bid that was placed first takes precedence, and this includes proxy bids.
Another bidder placed an automatic proxy bid greater or equal to the bid you have just placed. You will need to bid again to stand a chance of winning.